高見マンション 203号
フルリフォーム完了しました!南向の住居♪南向きの広々LDKでゆったりとすごせます♪
6.1万円
- タイプ
- 2LDK
- 物件管理番号
- r_08
- 種別
- マンション
- 取引形態
- 貸主
- 築年月日
- 1985年11月
- 建物構造
- 鉄筋コンクリート造
- 物件階層
- 4階建/2階部分
- 居室方位
- 南
- 共益費
- 2,000円
- 駐車場
- 有 4,000円/1台
- 敷金
- 1ヶ月
- 礼金
- 1ヶ月
- 占有面積
- 55.4㎡(16.75坪)
- 現況
- 空
- 火災保険
- 要 2年間/18000円(例)
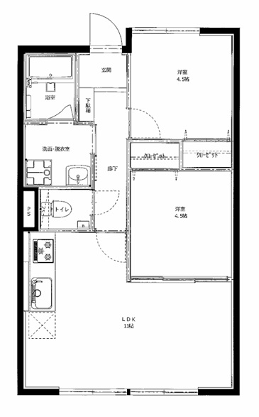
- 間取り
2LDK: 洋室4.5帖/洋室4.5帖/LDK11帖
- 交通
- とさでん交通北秦泉寺バス停 徒歩1分
- 設備
トイレ、温水洗浄便座、バス・トイレ別、シャワー、シャワー付洗面化粧台、システムキッチン、ガスコンロ付、3口コンロ、玄関収納、エアコン2台、室内洗濯機置場、全居室フローリング、全室照明付、モニター付インターホン、都市ガス、上水道、下水道、駐輪場有(無料)、バイク置場有(無料)、インターネット(無料)
- 備考
リフォーム:水回り 2025年12月完了 (キッチン・浴室・トイレ・洗面所)
リフォーム:内装 2025年12月完了 (全面(床・壁・天井・建具))
賃貸保証:加入要、Casa、賃料等の50%(更新時10,000円/年・手数料550円/月)
株式会社エムライフ地所【高知県知事(1)第3069号】
本社:〒781-8002高知市役知町3番3-6号 / 不動産統括推進室:〒780-0071 高知市高埇2番10号
TEL:088-885-0100(定休日も電話対応はおこなっております) / FAX:088-885-0050
営業時間 9:00~17:00(定休日/土・日・祝・年末年始・お盆)
公益社団法人 高知県宅地建物取引業協会
本社:〒781-8002高知市役知町3番3-6号 / 不動産統括推進室:〒780-0071 高知市高埇2番10号
TEL:088-885-0100(定休日も電話対応はおこなっております) / FAX:088-885-0050
営業時間 9:00~17:00(定休日/土・日・祝・年末年始・お盆)
公益社団法人 高知県宅地建物取引業協会






